Renovierte Erdgeschosswohnung in begehrter Lage von Bad Godesberg

Objektdaten

GWH-SJ-202403109
Wohngebäude
53177
Bonn
70 m²
2
1
1984

Allgemein:

Wohnfläche: ca. 70 m²

Erdgeschosswohnung (ebenerdig)

Baujahr des Hauses: 1984

Baujahr der Heizungsanlage: 1997

Komplett renoviert im März/April 2024

Leerstehend und sofort bezugsfrei

Heizung & Warmwasser:

Gaszentralheizung mit Fußbodenheizung

Heizkreise individuell regulierbar

Warmwasser über elektrische Durchlauferhitzer (erneuert März/April 2024)

Verbrauchserfassung über installierte Messgeräte (Heizung & Wasser)

Böden & Wände:

Küche und Bad: neu gefliest

Alle anderen Böden: Beläge im Zuge der Renovierung entfernt – frei für eigene Gestaltung

Badezimmer: vollständig modernisiert (2024) mit neuen Wand- und Bodenfliesen sowie modernen weißen Sanitärobjekten

Wände im Bad: gefliest

Fenster & Türen:

Fenster: isolierverglast, Echtholzrahmen

Rollläden: teilweise elektrisch bedienbar

Zimmertüren: weiß mit Stahlzargen (neu 2024)

Wohnzimmertür: Echtglastür

Weitere Ausstattung:

Separater Kellerraum

Eigener Waschmaschinenplatz in der gemeinschaftlichen Waschküche

Sanierte Tiefgaragendecke (2024)

Ruhige, gartenseitige Ausrichtung mit Ausblick ins Rheintal und Siebengebirge

Energie

Gas
149,70 kWh/(m²·a)
kWh/(m²·a)
Energieausweistyp: Verbrauchs­ausweis | Ausstellungsdatum: 16.02.2016 | Gültig bis: 15.02.2026 | Gebäudeart: Wohngebäude | Baujahr: 1984 | Primärenergieträger: Gas | Endenergie­verbrauch: 149,70 kWh/(m²·a) | Warmwasser enthalten: ja | Energie­effizienz­klasse: E

Informationen

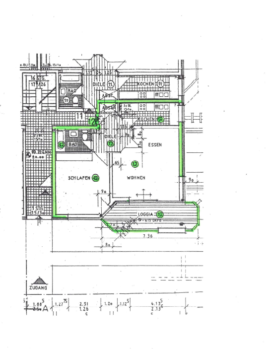
In begehrter und sonniger Lage von Bonn-Bad Godesberg, im charmanten Ortsteil Muffendorf, befindet sich diese ansprechende Eigentumswohnung im Erdgeschoss eines gepflegten Terrassenhauses. Die Wohnung gehört zu einer Eigentümergemeinschaft mit insgesamt 14 Einheiten und bietet auf ca. 70 m² Wohnfläche viel Potenzial für individuelle Gestaltung und komfortables Wohnen.

Die im Jahr 1984 errichtete Wohnung wurde im März/April 2024 umfassend renoviert. Im Zuge dieser Maßnahmen wurden sämtliche Bodenbeläge – mit Ausnahme der Küche und des Badezimmers – entfernt, um künftigen Eigentümern größtmögliche Freiheit bei der Auswahl und Gestaltung ihrer neuen Wohnumgebung zu lassen. Das Badezimmer wurde vollständig modernisiert: Wand- und Bodenfliesen sowie alle Sanitärobjekte sind erneuert worden. Die Gestaltung ist zeitlos-modern mit weißen Sanitärelementen und einer wandhoch gefliesten Wanne.

Alle Fenster sind isolierverglast und verfügen über Echtholzrahmen und Rollläden, teilweise elektrisch bedienbar. Die Türen innerhalb der Wohnung – darunter auch eine Echtglastür zum Wohnzimmer – wurden im Rahmen der Renovierung ebenfalls erneuert und sind in einem klassischen Weiß mit robusten Stahlzargen gehalten.

Beheizt wird die Wohnung über eine Gaszentralheizung mit Fußbodenheizung, deren Heizkreise individuell regulierbar sind. Die Warmwasserversorgung erfolgt über neue elektrische Durchlauferhitzer (Erneuerung ebenfalls im Frühjahr 2024). Der Verbrauch von Wasser und Heizung wird durch installierte Messgeräte individuell erfasst, was eine transparente Abrechnung ermöglicht.

Zur Wohnung gehört ein separater Kellerraum sowie ein eigener Waschmaschinenplatz in der gemeinschaftlichen Waschküche im Untergeschoss des Hauses. Die Wohnung ist ebenerdig gelegen und derzeit nicht bewohnt – einem kurzfristigen Einzug steht somit nichts im Wege.

Ein Tiefgaragenstellplatz steht ebenfalls zur Verfügung und kann für 10.000 EUR mit erworben werden – ideal für komfortables und sicheres Parken direkt am Haus

Zögern Sie nicht, sich dieses Angebot näher anzusehen und vereinbaren Sie noch heute einen Besichtigungstermin!

Das Zentrum von Bad Godesberg mit seinen zahlreichen Einkaufsmöglichkeiten, Boutiquen, Restaurants, Cafés, dem Schauspielhaus und einem Multiplex-Kino liegt nur wenige Minuten entfernt und bietet ein breites Spektrum an Freizeit- und Kulturangeboten. Die Verkehrsanbindung ist ausgezeichnet: Der Bahnhof Bad Godesberg ermöglicht schnelle Verbindungen in die Städte Bonn, Köln und Koblenz, und die nahegelegene B9 bietet einen zügigen Anschluss an das überregionale Autobahnnetz.

Karte

Angebotsübersicht
Für diese Immobilie sind keine Fotos vorhanden.
Wir sind gerne für Sie da!