Krukenberg Dorsten | Helle 4,5-Zimmer Dachgeschosswohnung für Familien

Objektdaten

CK-435
Wohngebäude
46282
Dorsten
3
3
75 m²
5
3
1983

- Die Küche kann auf Wunsch drin bleiben gegen eine Ablösesumme an den Vormieter

Energie

Gas
kWh/(m²·a)
Gebäudeart: Wohngebäude | Baujahr: 1983 | Primärenergieträger: Gas

Informationen

150,00 €
760,00 € (zzgl. Heizkosten)
1.830,00 €

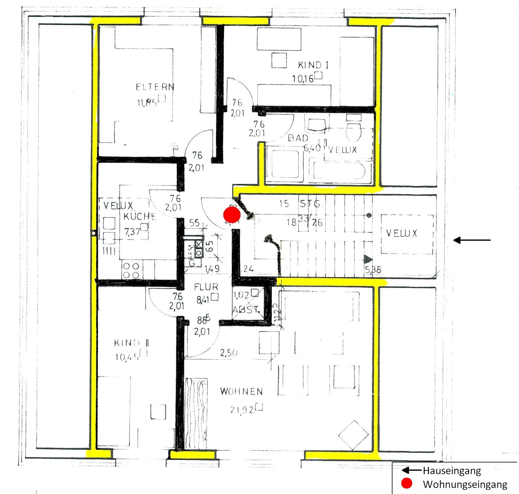
Zur Vermietung steht eine attraktive 4-Zimmer-Dachgeschosswohnung mit 75 m² Wohnfläche in einem gepflegten Mehrfamilienhaus in der Franz-Liszt-Straße 22, 46282 Dorsten. Die Wohnung bietet auf einer großzügigen Fläche viel Platz für individuelle Gestaltung und eignet sich ideal für Paare oder kleine Familien.

Das Herzstück der Wohnung bildet das geräumige, lichtdurchflutete Wohnzimmer, das mit seinen hohen Dachschrägen eine besondere Atmosphäre schafft. Zusätzlich befinden sich drei weitere, gut geschnittene Zimmer, die vielfältig genutzt werden können, sei es als Schlafzimmer, Arbeitszimmer oder Kinderzimmer.

Das Badezimmer ist sowohl mit einer Dusche als auch mit einer Badewanne ausgestattet und verfügt über Tageslicht, sodass hier für Entspannung und Wohlbefinden gesorgt ist. Die moderne Ausstattung sorgt für Komfort, und die großen Fenster lassen viel Licht hinein, wodurch der Raum freundlich und einladend wirkt.

Ein weiterer Vorteil der Wohnung ist der eigene Stellplatz, der Ihnen die Parkplatzsuche erspart.

Die Küche kann nach Absprache mit dem Vormieter übernommen werden, sodass Ihnen ein einfacher Einzug ermöglicht wird, falls dies gewünscht ist.

Die Wohnung befindet sich in einer ruhigen und dennoch zentralen Lage in Dorsten. Einkaufsmöglichkeiten, Schulen und öffentliche Verkehrsmittel sind in wenigen Minuten erreichbar, sodass Sie eine gute Anbindung an die Umgebung genießen.

Wenn Sie eine gut geschnittene, gemütliche Wohnung mit viel Potenzial in Dorsten suchen, ist dieses Angebot genau das Richtige für Sie. Vereinbaren Sie noch heute einen Besichtigungstermin und überzeugen Sie sich selbst von diesem besonderen Mietobjekt.

Diese Immobilie befindet sich in einer ruhigen und dennoch zentralen Wohngegend von Dorsten, einer charmanten Stadt im westlichen Ruhrgebiet. Die Lage bietet eine ideale Mischung aus Stadtnähe und ländlichem Ambiente.

Die Anbindung an das öffentliche Verkehrsnetz ist hervorragend. Die Bushaltestelle ist nur einen kurzen Spaziergang entfernt und bietet regelmäßige Verbindungen in die umliegenden Städte sowie zum Hauptbahnhof Dorsten.
Für Autofahrer ist die Lage ebenfalls perfekt. Die Autobahn A31 ist schnell zu erreichen, was eine einfache Anreise ins nahe gelegene Ruhrgebiet und darüber hinaus ermöglicht.
Die Umgebung ist geprägt von grünen Parks und Naherholungsgebieten, ideal für Spaziergänge, Joggen oder Fahrradtouren. Der nahe gelegene Wesel-Datteln-Kanal lädt zu entspannenden Wasseraktivitäten ein.
Schulen, Kindergärten und medizinische Einrichtungen sind in der Nähe, sodass alle wichtigen Einrichtungen des täglichen Lebens bequem erreichbar sind.
Dorsten selbst bietet eine Vielzahl von kulturellen und historischen Sehenswürdigkeiten, darunter die historische Altstadt mit dem Schloss Dorsten und dem Alten Markt.

Diese Lage vereint Komfort, Ruhe und urbane Annehmlichkeiten.

Karte

Angebotsübersicht
Für diese Immobilie sind keine Fotos vorhanden.
Wir sind gerne für Sie da!