Ausstattungsmerkmale & Highlights:
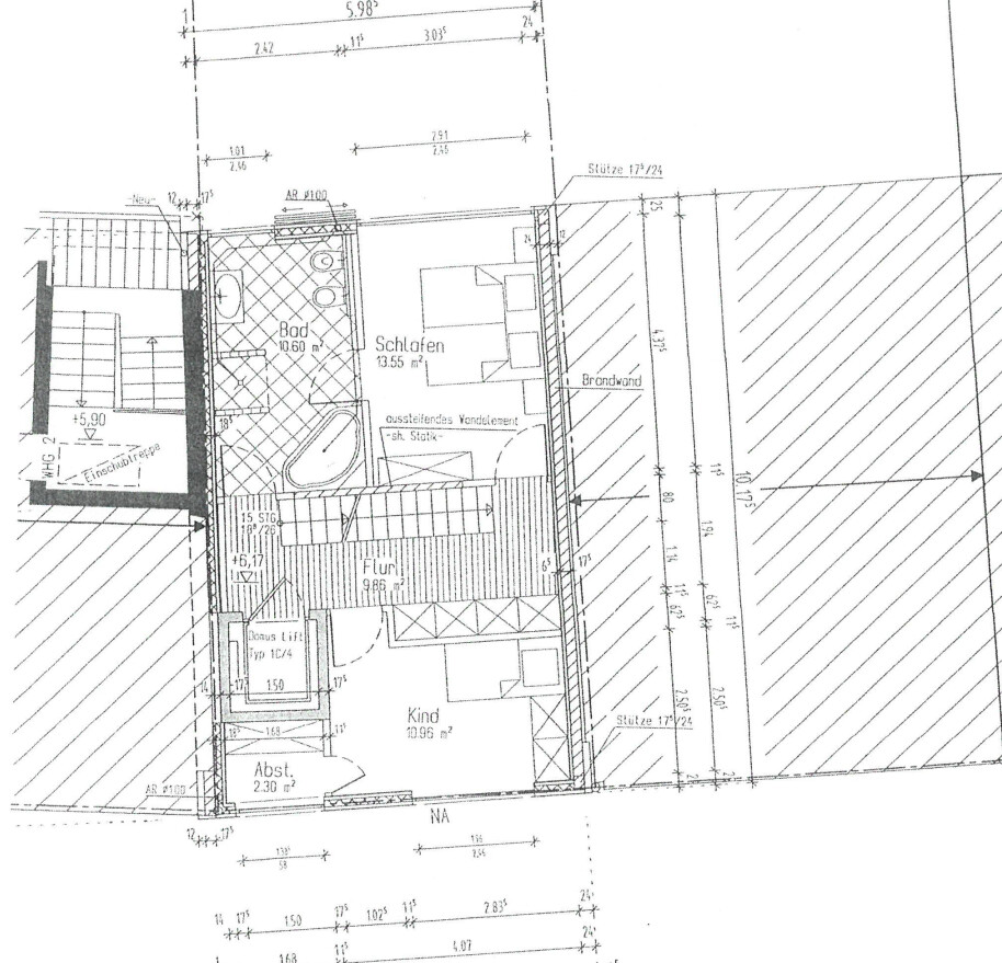
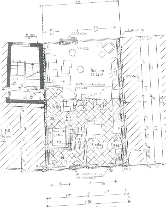
Wohnfläche: ca. 147 m²
Zimmer: 5 großzügige Zimmer auf 3 Etagen
Grundriss: Offene, luxuriöse Gestaltung für ein modernes Wohngefühl
Balkon: Süd-Ost Ausrichtung mit herrlichem Blick über Dorsten
Lift: Direkter Zugang zum Wohnzimmer und zur Dachterrasse
Heizung: Umweltfreundliche und effiziente Wärmepumpe
Bäder: Moderne, hochwertige Bäder mit edlen Materialien
Lage: Zentrale Lage in der historischen Altstadt von Dorsten
Dachterrasse: Zugang zu einer exklusiven Dachterrasse mit atemberaubendem Ausblick
Fenster: Große Fensterflächen für lichtdurchflutete Räume
Ausstattung: luxuriöse Materialien und modernste Technik
## Die Wohnung ist Teil des Gesamtgebäudes, es kann nur das Gesamtgebäude als Ganzes verkauft werden.
## Die hier gezeigte Wohnung hat eine Wohnfläche von ca. 147 m².
## Zum Gebäude gehören zusätzlich zwei Wohnungen und eine Gewerbeeinheit, insg. ca. 202 m², Gesamtgebäude inkl. dieser Wohnung also ca. 350 m².
Dieses außergewöhnliche Lofthaus in Dorstener Altstadt vereint modernen Luxus mit einem unverwechselbaren Wohnkomfort und bietet Ihnen zugleich die Möglichkeit, von mehreren weiteren Einheiten zu profitieren. Auf großzügigen 147 m² erstreckt sich die Wohnung über drei Etagen und bietet mit ihren fünf hellen, offenen Zimmern ein besonders großzügiges Raumgefühl. Die offene Grundrissgestaltung sorgt für eine perfekte Lichtdurchflutung und schafft eine harmonische Verbindung zwischen den einzelnen Räumen.
Das Lofthaus wurde mit viel Liebe zum Detail und hochwertigen Materialien ausgestattet. Sie lässt keine Wünsche offen und erfüllt höchste Ansprüche an modernes Wohnen. Ein besonderes Highlight ist der Balkon mit Süd-Ost-Ausrichtung, der Ihnen einen herrlichen Blick über die Altstadt von Dorsten bietet. Hier können Sie entspannte Stunden in der Sonne verbringen und gleichzeitig die Atmosphäre der Stadt auf sich wirken lassen.
Für zusätzlichen Komfort sorgt der moderne Lift, der Sie nicht nur direkt in das Wohnzimmer führt, sondern auch zur Dachterrasse bringt – ein idealer Ort, um die warmen Sommerabende zu genießen. Die luxuriösen, modernen Bäder sind mit edlen Materialien ausgestattet und bieten höchsten Komfort.
Die umweltfreundliche Wärmepumpe sorgt für eine energieeffiziente Beheizung und rundet das nachhaltige Konzept der Wohnung ab.
Dank der zentralen Lage in Dorstener Altstadt genießen Sie nicht nur die Nähe zu Einkaufsmöglichkeiten, Restaurants und Cafés, sondern auch eine exzellente Anbindung an den öffentlichen Nahverkehr. Hier wohnen Sie ruhig und dennoch mitten im Geschehen – der perfekte Ort, um das Leben in Dorstener Stadtmitte in vollen Zügen zu genießen.
Perfekt für Selbstnutzer – Ideal als exklusive Residenz.
Dieses Penthouse bietet nicht nur außergewöhnlichen Wohnkomfort, sondern auch die Möglichkeit, eine exklusive Wohnung in einer der beliebtesten Lagen von Dorsten zu beziehen. Ob als Selbstnutzer, der das Beste aus modernem Luxus und zentraler Lage sucht, oder als Kapitalanlage – dieses Objekt bietet Ihnen zahlreiche Perspektiven.
Gewerbe- und Wohneinheiten zur Kapitalanlage – Ein lohnendes Investment.
Zusätzlich zum Lofthaus umfasst das Gebäude zwei Wohneinheiten sowie eine Gewerbeeinheit. Diese Einheiten bieten sich hervorragend als Kapitalanlage an. Die gewerbliche Nutzung im Erdgeschoss verspricht stabile Mieteinnahmen, während die beiden Wohneinheiten als Wohnraum für Mieter interessant sind. Aktuell wird durch diese Einheiten eine Nettokaltmiete in Höhe von 1.655,00 EUR erzielt. Sollte das Lofthaus ebenfalls vermietet werden, kann insgesamt eine Nettomiete von 3.275,00 EUR erzielt werden. Die vermietbare Fläche ohne das Loft beträgt ca. 201,86 m².
So erhalten Sie mit diesem Objekt nicht nur ein exklusives Zuhause, sondern auch eine attraktive Möglichkeit, langfristige Einkünfte zu generieren.
Lassen Sie sich diese einzigartige Gelegenheit nicht entgehen und vereinbaren Sie noch heute einen Besichtigungstermin!
Ihr neues, exklusives Loft liegt in der Altstadt, unweit der Fußgängerzone. Die zentrale Lage ermöglicht es Ihnen, Einkäufe des täglichen Bedarfs schnell und bequem zu erledigen. In der direkten Umgebung finden Sie zahlreiche Einkaufsmöglichkeiten, Restaurants, Bäckereien und Supermärkte sowie ein breites Freizeitangebot. Verschiedene Grünflächen, Parkanlagen, Fitnessstudios und wichtige Dienstleistungen wie Arztpraxen, Apotheken, Friseure und eine Postannahmestelle sind ebenfalls fußläufig erreichbar. Darüber hinaus gibt es in der weiteren Umgebung weitere Einkaufsmöglichkeiten, Kindergärten sowie kulturelle Einrichtungen und ein vielfältiges Freizeitangebot für den Abend. Dank der Nähe zu den Dorstener Ärztehäusern, dem Elisabeth-Krankenhaus und weiteren Arztpraxen ist eine umfassende medizinische Versorgung jederzeit gewährleistet. Die B224 und B225 durchqueren Dorsten und verbinden Sie rasch mit den umliegenden Städten sowie den Autobahnen A31, A2 und A52.
























